TEL. 0952-71-6321
〒849-0501 佐賀県杵島郡江北町山口1334

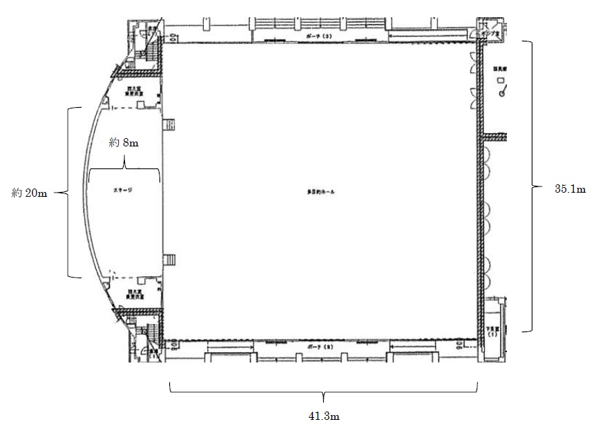
各種公式競技が可能な広さ、高さ、照明を配慮した体育館アリーナです。
・バスケットゴールコート 2面
・バレーボールコート 2面
・バドミントンコート 8面 設営可能。
広々とした施設のため各スポーツ競技の練習や、大会でも快適に利用ができ充実した音響設備により、講演や式典などのイベントへの対応もできます。
ギャラリーA 備品倉庫

机(8台) 椅子(527脚)
<指定管理者> 有限会社みもざ
〒849-0501
佐賀県杵島郡江北町山口1334
TEL 0952-71-6321
FAX 0952-71-6322